Аренда офиса 47.1 м2
Стоимость аренды
496664
руб./месяц
Код лота: 62C46C9-7001-585-1. Реализуется на торгах.
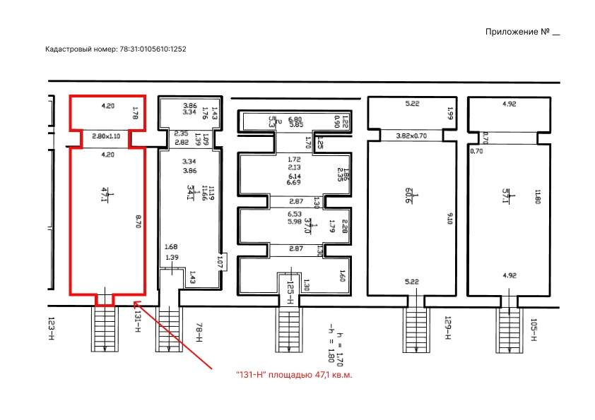
Реализуется право аренды части помещения свободного назначения, расположенного на Садовой улице, на территории Апраксина двора. Помещение находится в собственности Санкт-Петербурга. Объект расположен в историческом центре Санкт-Петербурга, в пешей доступности от станции метро и остановок наземного общественного транспорта. Окружение объекта представлено преимущественно общественно-деловой застройкой. В непосредственной близости находится Универмаг Большой Гостиный двор, торговые ряды Апраксина двора, офисные и торговые помещения, а также объекты общественного питания. В настоящее время помещение не используется, требуется проведение ремонтных работ. Договор аренды заключается сроком на 3 (три) года для использования под нежилые цели. Инженерные коммуникации: электроснабжение, канализация Кадастровый номер помещения, часть которого сдается в аренду: 78: 31: 0105610: 1252 Площадь сдаваемой части: 47,1 кв. м Назначение: нежилое Наименование: нежилое помещение Этаж: подвал, заглубление более 1,5м Входы: 1 отдельный с улицы Окна: нет Здание, в котором расположено помещение относится к числу объектов культурного наследия регионального значения. Помещение расположено в непосредственной близости от крупной городской магистрали Садовой улице. Местоположение объекта характеризуется высокими пешеходным и автомобильным трафиками. Станция метро «Гостиный двор» и Невский проспект - 650 м Оптимальное использование помещения: в качестве помещения торгово-офисного назначения Торги проходят по поручению Комитета Имущественных отношений Санкт-Петербурга. https: //catalog. lot-online. ru/index. php?dispatch=products. view&product_id=1595592 Общая стоимость: 496664 руб./месяц Общая площадь: 47 кв. м Этаж/этажность: Цоколь
г. Санкт-Петербург
Садовая улица, 28-30к1 |
2186053 01 Марта 2026 просмотров 1 |
Добавить комментарий
Похожие объявления
















