Аренда ПСН площадью 42 м2
Стоимость аренды
161000
руб./месяц
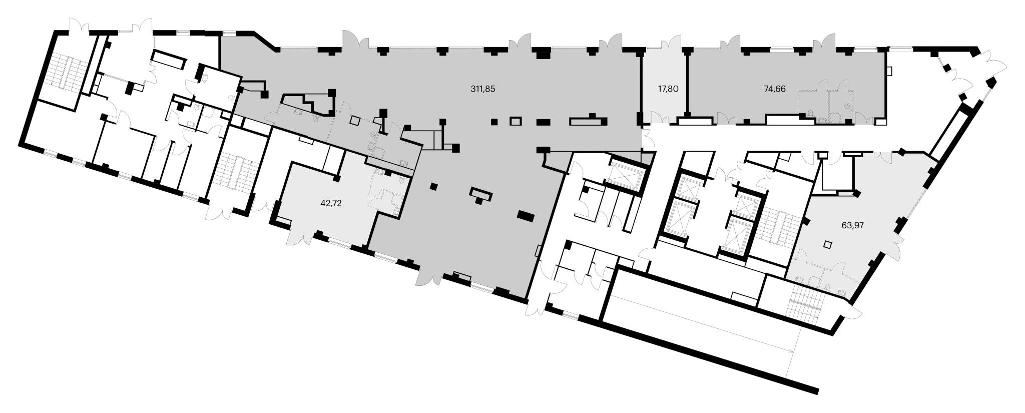
В аренду сдается коммерческое помещение в строящемся корпусе проекта Вольта.
Проект является уникальным и включает в себя 430 апартаментов с готовой дизайнерской отделкой, что обеспечит высокий трафик при сдаче дома. Помещение находится в развитой локации бизнес-центров и жилья Комфорт класса. Выход на внутриквартальную улицу обеспечит еще большую проходимость жителей и гостей района Особенности помещения: Открытая планировка Витринное остекление Два удобных входа на уровне земли с стороны Набережной Высота потолков - 3,93 м Эл. мощность - 200 ВТ/м2 Объект расположен по адресу: Санкт-Петербург, пр. Энергетиков, дом 6, корпус 2, литера А. Общая площадь - 42,72 м. Арендная ставка - 46 000,00 руб/м2/год БЕЗ учета КП и ЭР Требуемый функционал - аптека Получение РВЭ - 30.09.2025 г. Общая стоимость: 161000 руб./месяц Общая площадь: 42 кв. м Этаж/этажность: 1/15 |
2185220 14 Февраля 2026 просмотров 1 |
Добавить комментарий
Похожие объявления









