Санкт-Петербург
выбрать Метро
Сдам
Сниму
Продам
Куплю
         Площадь:
от:

до:
кв.м.
         Стоимость:
от:

до:
руб.
Показать

Сдается коммерческое помещение,

Стоимость аренды 235000 руб./месяц
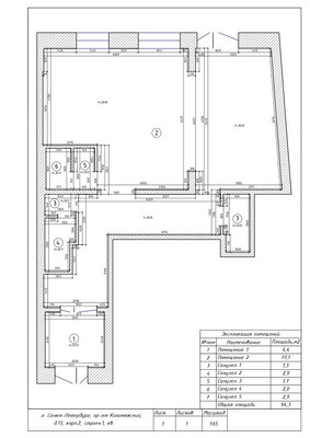
Арт. 114974380 Предлагается в аренду на длительный срок отличное помещение в недавно сданном доме в ЖК «Приморский квартал». Два отдельных входа, один из которых со стороны улицы, другой с дворовой территории. Два витринных окна. Много подсобных помещений. Помещение под чистовую отделку: на полу приличная цементная стяжка, стены ровные, местами бетон, местами кирпичная кладка. Электричество 3-х фазное 20 кВА. Водопровод, канализация, отопление, пожарная сигнализация, вентиляция в наличии. Над входом установлена тепловая завеса. Ремонт можно сделать под себя. Предоставляются арендные каникулы, срок обсуждается индивидуально.Развитый заселенный новый квартал. В квартале 13 корпусов по 25 этажей. В ЖК 6700 квартир. 3 детских сада. Школа на 1500 учеников.
#8874849#


Общая стоимость: 235000 руб./месяц
Этаж/этажность: 1/25
Агентам: Не звонить


г. Санкт-Петербург
Пионерская
5 минут пешком

Коломяжский проспект, 13к2

Головлева Валентина т. +7(931)201-56-16



Расскажи об этом объявлении:

 facebookFacebook    twitterTwitter    в контактеВ Контакте  
2173376
28 Августа 2025
просмотров 6





  • test
  • test
  • test
  • test
  • test
  • test
  • test
  • test
  • test
  • test
  • test
  • test
  • test
  • test
  • test
  • test
  • test
  • test
  • test
  • test
  • test

Добавить комментарий



Похожие объявления





Отправка сообщения хозяину объявления: №
Пожаловаться на объявление: №