Санкт-Петербург
выбрать Метро
Сдам
Сниму
Продам
Куплю
         Площадь:
от:

до:
кв.м.
         Стоимость:
от:

до:
руб.
Показать

Продается коммерческое помещение,

Цена продажи 75000000 руб.
Арт. 109944532 Почему стоит обратить внимание на это предложение?Выигрышное расположение: Находится на главной магистрали ВО с высокой проходимостью. Это значит, что ваш бизнес будет на виду у множества потенциальных клиентов!
Комфортный доступ: Удобный отдельный вход с улицы и дополнительный вход со двора, что обеспечит легкий доступ как для клиентов, так и для сотрудников.
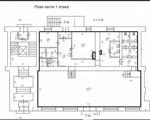
Отличное состояние: Помещение готово к немедленному использованию. Витринные окна, высокие потолки (4.32 м в основной зоне) создают пространство для творческого подхода в дизайне интерьеров.
Уникальное предложение включает:Разнообразие возможностей: Подходит для ресторана, кафе, офиса, торговой точки, салона красоты или фитнес-зала. Дайте волю своей фантазии!
Коммуникации: Современные системы — центральное отопление, электричество 54 кВт с отдельным кабелем от трансформаторной подстанции.
Готовая инфраструктура: Два санитарных узла для посетителей и отдельные удобства для сотрудников, включая душевую. Организуйте комфортные условия для вашего коллектива!
Действующий бизнес: На данный момент имеется действующий договор аренды с арендатором «Суши Вайт», что обеспечит стабильный доход сразу после приобретения.
Дополнительные преимущества:Близость к транспортным узлам, включая метро "Горный институт" всего в 10 минутах пешком. Это делает помещение доступным для клиентов и сотрудников!
Функциональное разделение пространства: Два цеха для приготовления, отдельно зона мойки и кабинет администратора, что упрощает организацию рабочего процесса.
Не упустите шанс стать владельцем этого перспективного объекта! Это помещение – ваш шаг к успешному бизнесу, который привлечет внимание не только покупателей, но и инвесторов. Свяжитесь с нами уже сегодня, чтобы узнать больше и назначить просмотр!
#8858168#


Общая стоимость: 75000000 руб./месяц
Этаж/этажность: 1/1
Агентам: Не звонить


г. Санкт-Петербург
Технологический институт
6 минут пешком

, 89

Седышева Лейла т. +7(911)257-83-33



Расскажи об этом объявлении:

 facebookFacebook    twitterTwitter    в контактеВ Контакте  
2171703
24 Июля 2025
просмотров 13





  • test
  • test
  • test
  • test
  • test
  • test
  • test
  • test
  • test
  • test
  • test
  • test
  • test
  • test
  • test
  • test

Добавить комментарий



Похожие объявления





Отправка сообщения хозяину объявления: №
Пожаловаться на объявление: №