Аренда торгового помещения в ЖК Friends
Стоимость аренды
207000
руб./месяц
Предлагается в аренду коммерческое помещение в ЖК Friends.
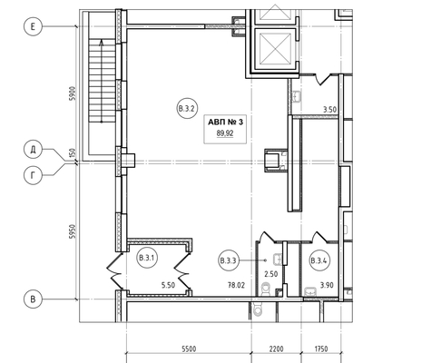
Отдельный вход с улицы, витринные окна, открытая планировка. Высокая концентрация населения, дом 25 этажей, соседние дома такой же этажности. Площадь 89,9 кв.м., электричество 20 кВт, высота потолков 3,6 м.. Арендные каникулы обсуждаются, просмотр по предварительной договоренности. #8590845# Общая стоимость: 207000 руб./месяц Этаж/этажность: 1/25 Агентам: Не звонить |
2160927 11 Марта 2025 просмотров 29 |
Добавить комментарий
Похожие объявления










