Аренда части отдельно стоящего здания
Стоимость аренды
160000
руб./месяц
1704299 Предлагается в аренду часть отдельно стоящего здания расположенного в Ленинградской области во Всеволожском районе в поселке Щеглово.
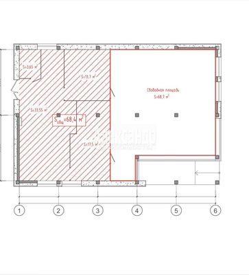
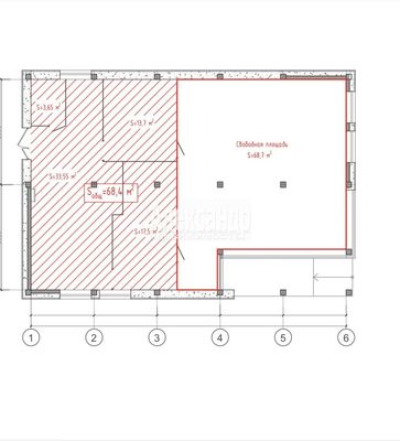
Поселок динамично развивается, активно застраивается, численность населения ежегодно растет. ОСЗ находиться на территории ЖК «Щегловские Усадьбы», комплекс состоит из 16 корпусов по 4 этажа каждый, 2160 квартир. комплекс сдан и заселен. Здание одноэтажное, общая площадь 137 кв.м., часть помещения занимает Валберис и Озон, есть витрины, своя парковка, много места под рекламу. Подходит под различные сферы деятельности, срок договора обсуждается. Конкурентов практически нет, так как это единственное коммерческое помещение в комплексе, ближайшие магазины находятся в радиусе 300-400 м. Это небольшой ТК в котором находятся: продуктовый ритейлор «Дикси», аптека «Будь Здоров», алкомаркет «ВинЛаб», магазин разливного пива «Пивточка», табак, овощи-фрукты, зоолавка и другие. Площадь: 68,7 кв.м. кВт: 30 Без ремонта: каникулы обсуждаются. Арендная ставка: 160 000 + КУ #8865271# Общая стоимость: 160000 руб./месяц Этаж/этажность: 1/1 Агентам: Не звонить
Громова Наталья Викторовна
т. +7(812)200-40-00
|
2173277 26 Августа 2025 просмотров 44 |
Добавить комментарий
Похожие объявления
















